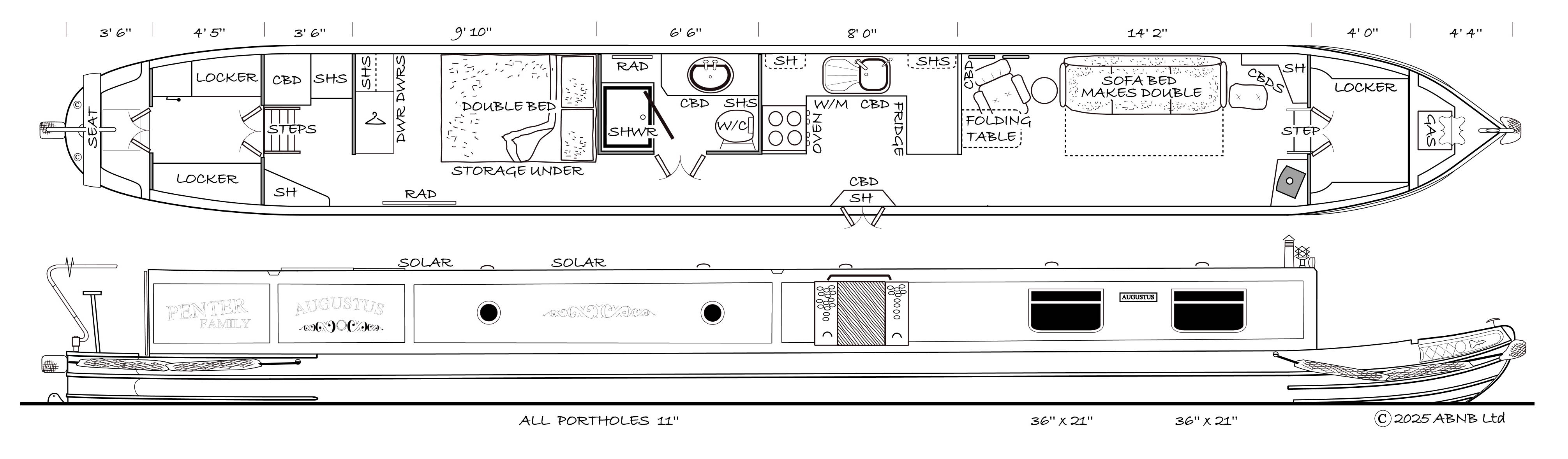
Length:
58ft 0in
Builder:
Burton Narrowboats
Fitter-out:
First owner
Style:
Semi-trad
Year:
2002
Certification:
BSS Certificate to 2027
Engine:
Barrus 2002 diesel
Bow thruster:
None
Plating:
10/6/5/4
Last out of water:
October 2025
Water tank:
Under deck stainless steel 200 gallon (approx) water tank
Headroom:
6ft 3in
Fit-out materials:
Cabin sides, headlining (ceiling) and bulkheads (partitions) lined in oak plywood, with hull sides carpet
Insulation:
Rockwool
Berths:
2 + 2
Berths sizes:
6ft 4in x 4ft 0in permanent double with interior sprung mattress; 6ft 0in x 4ft 0in make-up double with foam mattress on sofa-bed; Space for airbed or similar in saloon
Washing:
Zanussi Aquacycle 1300 washing machine
Toilet:
Thetford electric flush cassette toilet with 3 spare cassettes
Shower:
Cubicle shower 28in x 28in with tiled linings and acrylic doors
Cooker:
Gas cooking; Country Leisure 2200 Caprice 4 burner grill & oven
Water heating:
Calorifier heated by engine, boiler & immersion
Cabin heating:
Bubble square diesel stove with back boiler
Mains 230V:
230V circuit installed; Independent onboard 230V power from batteries via Yinleader 2kW pure sine wave inverter; Charging by Ctek 15A charger; Trickle charging from 3 x 100W solar panels with MPPT controller(s)
Other:
Forward and aft tonneau covers are fitted to protect the decks when not in use.
Location:
ABNB at North Kilworth Marina
Price: £
43,000
Current status:
Awaiting survey
Whilst we endeavour to ensure the details listed here are correct there may be some listings awaiting vendors approval. Please check the brochure details for the boat that interests you. If you are still in any doubt please contact the office by telephone or email where a member of the team will do their utmost to help.
PLEASE NOTE: This is sales information and not a survey report; providing content details only. In this case we are acting as Brokers only. The specification in these pages is based on ABNB’s visit to the vessel and on information given by the owner. Whilst every care has been taken in their preparation, the correctness of these particulars is not guaranteed. The particulars are intended only as a guide and they do not constitute a term of any contract. A prospective Buyer is strongly advised to check the particulars and where appropriate at their own expense to employ a qualified Marine Surveyor to carry out a survey. Life saving appliances do not form part of the inventory and it is for the buyer to ensure that they are in date and suitable for their purposes. The information here is given in good faith but no description, statement, promise of work to be done, or suggestion for future use, constitutes an offer. If the craft leaves the UK, any necessary VAT paid status may not be available.


